منو
لوگو دماتجهیز

دیگ بخار حرارت گستر مدل HS14

دسته بندی: دیگ بخار حرارت گستر
برند
حرارت گستر
  • جنس لوله : آتش خوار بدون درز DIN ST35.8
  • قابلیت اطمینان، دوام و عملکرد بالا
  • طراحی شده بر اساس آخرین استانداردها
  • فشار کار : 10 بار
5
0 نظر ثبت شده
2 سال گارانتی شرکت حرارت گستر
10 سال خدمات پشتیبانی فنی
مجموعه دمـاتجهیــز امکان خرید اقساطی کالاهای سایت را فراهم نموده است. فرایند خرید اقساطی از این روش طی مدت ۱۰ الی ۱۵ روز انجام می شود و...
اطلاعات بیشتر و ثبت سفارش
تامین تجهیزات تهویه و تاسیسات (از سال 1383)

راهنمای خرید دیگ بخار حرارت گستر مدل HS14

دیگ های بخار حرارت گستر بر اساس نقشه و روش ساخت THOMPSON COCHRAN انگلیس، از معتبرترین و قدیمی ترین شرکت های اروپایی می باشد که راندمان، طول عمر بالا و ظرفیت دقیق از ویژگی های تضمین شده آن ها می باشد. دیگ های بخار حرارت گستر با قابل اطمینان بودن، دوام، کارایی بالا و طراحی قوی شناخته می شوند. شرکت حرارت گستر، یک متخصص شناخته شده بین المللی در تهیه انواع دیگ بخار مطابق با آخرین استانداردها می باشد.
دیگ بخار حرارت گستر بر اساس آخرین استاندارد ها با بیش از نیم قرن تجربه در طراحی و تولید بین المللی، به بازار عرضه می شود.
لوله کروگیت دیگ بخار حرارت گستر مدل HS14

ویژگی های دیگ بخار حرارت گستر مدل HS14

  1. تحمل فشار کاری بالاتر و عدم نیاز به آب بندی دیگ بخار
  2. قابلیت تولید با نرخ بالاتر
  3. انتقال حرارت مناسب تر و راندمان حرارتی بالا در دیگ های 3 پاس استاندارد به ویژه در انواع دیگ های وت بگ
  4. کلیه دیگ های شرکت حرارت گستر بر اساس طرح JOHN THOMPSON انگلستان و با تایید نقشه ساخت از موسسه TUV اتریش به صورت 3 پاس و وت بک تولید می شوند.
  5. دیگ بخار شرکت حرارت گستر علاوه بر فشار کاری ارائه شده 10 بار در جدول مشخصات فنی فوق در سایر فشارهای کاری نیز بر اساس نیاز و سفارش مشتری قابل ارائه می باشد.
    لوله اسپیرال دیگ بخار حرارت گستر مدل HS14
  6. بطور کلی دیگ بخار حرارت گستر علاوه بر اینکه باید طبق نقشه تایید شده ساخته شوند، نیاز است که برای بدنه، کوره ها و توری هایی ازجنس فولاد که برای ساخت مخازن حرارتی و فشاری استفاده می شوند مطابق با DIN 17 MN4 یا ASME A516 / G70 باشند. برای مواد لوله ها از لوله های آتش خوار بدون درز DIN ST35.8 استفاده می شود.
  7. کیفیت و متعلقات دیگ بخار فولادی در عملکرد و قیمت تمام شده دیگ بخار حائز اهمیت است که در زمان ارساال پیش فاکتور، شرح تجهیزات با مشخصات فنی بیشتر و زمان تحویل دیگ به خریدار اعلام می شود.
  8. شرکت تولیدی و صنعتی حرارت گستر با بیش از 30 سال سابقه در تولید انواع دیگ های آب گرم و بخار اولین و تنها شرکت تولید کننده دیگ بخار و آب گرم در کشور با مدیریت کاملا تخصصی و برگرفته از دانش فنی می باشد.
  9. در دیگ بخار حرارت گستر، هد هول، هند هول و دریچه های منهول با ابعاد مناسب در مکان هایی تعبیه شده اند که برای بازرسی، سرویس های دوره ای و حتی تعویض احتمالی لوله های دیگ (پس از مدت طولانی کارکرد) دسترسی  آسانی داشته باشند. این نکته به هنگام انجام بازرسی های دوره ای بسیار حائر اهمیت می باشد.
  10. قبل از خرید هر مدلی از دیگ بخار حرارت گستر و یا دیگ های آب گرم، با توجه به ترتیب یکپارچه دیگ های فولادی و وزن آنها به وضعیت و فشار دیگ بیشتر توجه کنید. به نحوه ی انتقال دیگ به محل نسب توجه کنید.
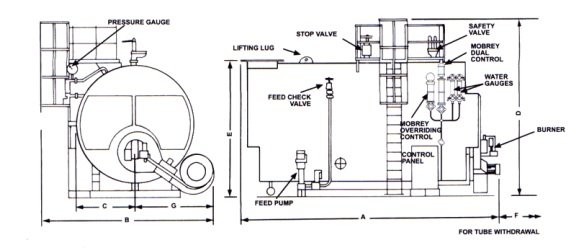
  11. ابعاد ارائه شده فقط برای دیگ بخار می باشد و با توجه به نصب تجهیزات در بالای دیگ و کنترل پنل، پمپ تغذیه و لوله های کنترل در کنار دیگ بخار و مشعل به همراه دیگ، به ابعاد ارائه شده اضافه خواهد شد.
  12. هنگام استعلام قیمت دیگ بخار باید نوع سوخت مصرفی و در صورت تمایل مارک مشعل اعلام شود.
  13. هنگام خرید مشعل مورد نیاز دیگ، لازم است مشعل را با توجه به نوع سوخت پروژه انتخاب کنید و حدود 20 درصد ظرفیت بالاتر را در نظر بگیرید.

لوله کروگیت دیگ بخار حرارت گستر مدل HS14

گارانتی دیگ بخار فولادی حرارت گستر مدل HS9

کلیه دیگ بخار حرارت گستر با 2 سال گارانتی و 10 سال خدمات پشتیبانی فنی ارائه می شوند. در سایت مرجع و فروشگاهی دماتجهیز، اطلاعات فنی و مناسبترین قیمت رادیاتور با گارانتی اصلی جهت برخورداری شما عزیزان از حس خوب خرید بهینه و هوشمند ارائه گردیده است.

مدل WETBACK HS14
تبخیر
F.&A. 100°C (°F)
lb/h 14000
kg/h 6350
kW 3981
  ابعاد پیشنهادی دودکش - mm 535
 شیر اطمینان - mm 65
شیر توقف - mm 150
شیر دمنده - mm 50
کمترین عرض انتقال - mm 2825
کمترین ارتفاع انتقال - mm 3330
مصرف سوخت (oil) - kg/h 376.6
مصرف سوخت (Gas) - m3/h 466.9
وزن دیگ خالی -Tonne 15.54
وزن دیگ N.W.L 24.19
وزن دیگ پر از آب -Tonne 27.02
ابعاد A 5838
B 4221
C 1275
D 4270
E 3150
F 3272
G 1921
آدرس

دفتر مرکزی: تهران - خیابان طالقانی - بین مفتح و بهار - نبش طالبیان - ساختمان ۴۶۳

کارخانه: جاده قدیم ساوه - بعد از سه راهی آدران - شهرک صنعتی قلعه میر - خیابان رینگ کار

خط ویژه فروش
لوگو دماتجهیز
گواهینامه های شرکت دماتجهیز

دمـاتجهیــز از سال 1382 فعالیت خود را با آینده نگری و خلاقیت بعنوان اولین فروشگاه اینترنتی کشور، در قالب مجموعه تخصصی و مهندسی فروش تجهیزات سرمایش، گرمایش و تهویه مطبوع (HVAC) برای اولین بار در خاورمیانه آغاز نمود. زمانی‌که هنوز بسیاری از فروشگاه‌های اینترنتی، تجارت الکترونیک و حتی برگزارکنندگان محترم امروزی همایش‌های فروش اینترنتی در حال و هوای دیگری بودند. شرکت مهندسی، تولیدی و بازرگانی دمـاتجهیــز با نگاهی به آینده، مسیر توسعه برند خود را ابتدا به عنوان اولین استارتاپ عرضه و فروش تجهیزات تأسیسات توسط آقای مهندس مجید زواریان با راه‌اندازی جامع‌ترین وب سایت فروش تجهیزات تهویه مطبوع (HVAC)، تجهیزات گرمایشی و موتورخانه، تجهیزات استخر، سونا و جکوزی، تجهیزات کنترل و ایمنی در 6 بخش و 80 گروه ترسیم نمود. سپس با تولید بسیاری از تجهیزات مهم و کاربردی تهویه مطبوع و حتی گرمایشی مانند انواع فن کویل، داکت اسپلیت، برج خنک کننده، مینی چیلر، چیلر هواخنک و آبی، هواساز، ایرواشر، یونیت هیتر و... با قیمت و گارانتی مناسب، مسیر ارائه این محصولات به پروژه‌های مختلف را با برند دمـاتجهیــز بهبود بخشید (به بخش محصولات دمـاتجهیــز مراجعه فرمایید).

شبکه های اجتماعی:
واتساپ دماتجهیزآپارات دماتجهیزلینکدین دماتجهیزیوتیوب دماتجهیزاینستاگرام دماتجهیز
© 2000-2025, All Rights Reserved