يتم إنتاج جميع مراجل الماء الساخن والصلب التي تعمل بالماء الساخن لشركة Herat Gostar في ثلاثة ممرات و WET BACK وفقًا لتصميم JOHN THOMPSON الإنجليزي وبموافقة خطة البناء من معهد TUV النمساوي.
المراجل الفولاذية القياسية ، بالإضافة إلى حقيقة وجوب تصنيعها وفقًا لخطة معتمدة ، مطلوبة أيضًا لمواد الهيكل (الغلاف) والأفران والشبكات من سبائك الفولاذ لبناء خزانات الحرارة والضغط وفقًا للمواصفة DIN 17 MN4 أو ASME A516 / G70 وللمواد الأنابيب أو الأنابيب استخدم خراطيم الحريق غير الملحومة DIN ST35.8.
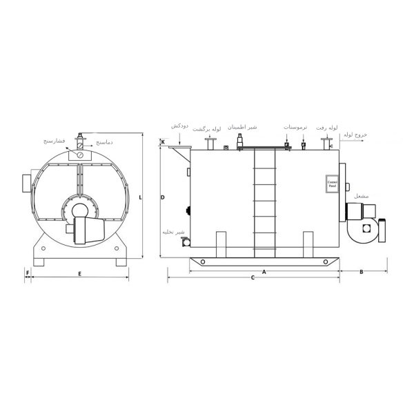
تعد جودة ووصف المعدات الطرفية لمرجل الماء الساخن الفولاذية مهمة بدورها في الأداء وسعر التكلفة للمرجل.
شركة Harart Gostar للتصنيع والصناعة ، بخبرة تزيد عن 30 عامًا في إنتاج أنواع مختلفة من مراجل الماء الساخن والماء الساخن والبخار ، هي الشركة الأولى والوحيدة التي تنتج مراجل الماء الساخن والماء الساخن والبخار في البلاد بإدارة متخصصة تمامًا • لديه تاريخ من المعرفة التقنية في صناعة المراجل بدرجة الماجستير في شركة أراك لبناء الماكينات.

تقدم شركة هرات جوستار للتصنيع والصناعة جميع مراجل الماء الساخن والماء الساخن مع ضمان لمدة عامين وخدمة دعم فني لمدة 10 سنوات.
في مراجل الماء الساخن وسخانات الماء الساخن ، يتم تركيب فتحات رأسية ، وفتحات يدوية ، وصمامات غرف التفتيش بأبعاد مناسبة في الأماكن التي تسمح بالفحص ، والخدمات الدورية وحتى إمكانية استبدال أنابيب المراجل (بعد فترة طويلة من التشغيل).
قبل الانتهاء من أمر بناء أو شراء أي من أنواع مراجل التدفئة المذكورة أعلاه ، بالإضافة إلى الانتباه إلى سعة وضغط عمل المرجل ، وفقًا للأبعاد المتكاملة لمرجل التدفئة ووزنها ، موضوع كيفية نقل المرجل إلى الموقع احرص على التركيب.
عند اختيار الموقد المطلوب للمرجل ، من الضروري اختيار الموقد وفقًا لنوع الوقود المتوفر في المشروع مع مراعاة السعة الأعلى بنسبة 20٪. في الموقع المرجعي ومتجر دماتجهیز، تم توفير المعلومات الفنية والسعر الأنسب للرادياتير مع الضمان الأساسي لك أعزائي للاستمتاع بإحساس جيد بالشراء الأمثل والذكي.
المكتب الرئيسي : طهران - شارع طالقاني - بين شارع مفتح وشارع بهار - زقاق طالبیان - بناية 463
المصنع : طريق ساوه القديم - بعد طريق آدران الثلاث طرق - مدينة قلعه مير الصناعية - شارع رینک کار - رقم 20


دماتجهيز هي المجموعة المتخصصة الأولى (منذ عام 2004) والأكثر شهرة في مبيعات معدات التهوية والتدفئة والتكييف (HVAC) وغيرها عبر الإنترنت في الشرق الأوسط. بالإضافة إلى إيران، من الممكن بيع وإرسال معدات HVAC المتخصصة إلى الزبائن الأعزاء في البلدان التالية: إن زبائننا الأعزاء في دول العراق - سوريا - كازاخستان - تركمانستان - أوزبكستان - طاجيكستان - أفغانستان - الأردن - الكويت - الإمارات - قطر - عمان هم من أهم زبائن منتجات دماتجهيز.